ZP 03 Závesný nerezový pisoárový žľab s odpadom na stred
ZP 03 sú nerezové pisoárové žľaby v rôznych šírkach určené do sociálnych zariadení s vyšším rizikom poškodenia. ZP 03 je závesný variant žľabu s odpadom na stred. Súčasťou typového prevedenia sú rozvody vody a odolné antivandalové nerezové trysky. Na splachovanie žľabu je doporučené časovo ovládané splachovanie COS. Na zákazku je možné dodať aj iný typ splachovania – napr. senzorové.
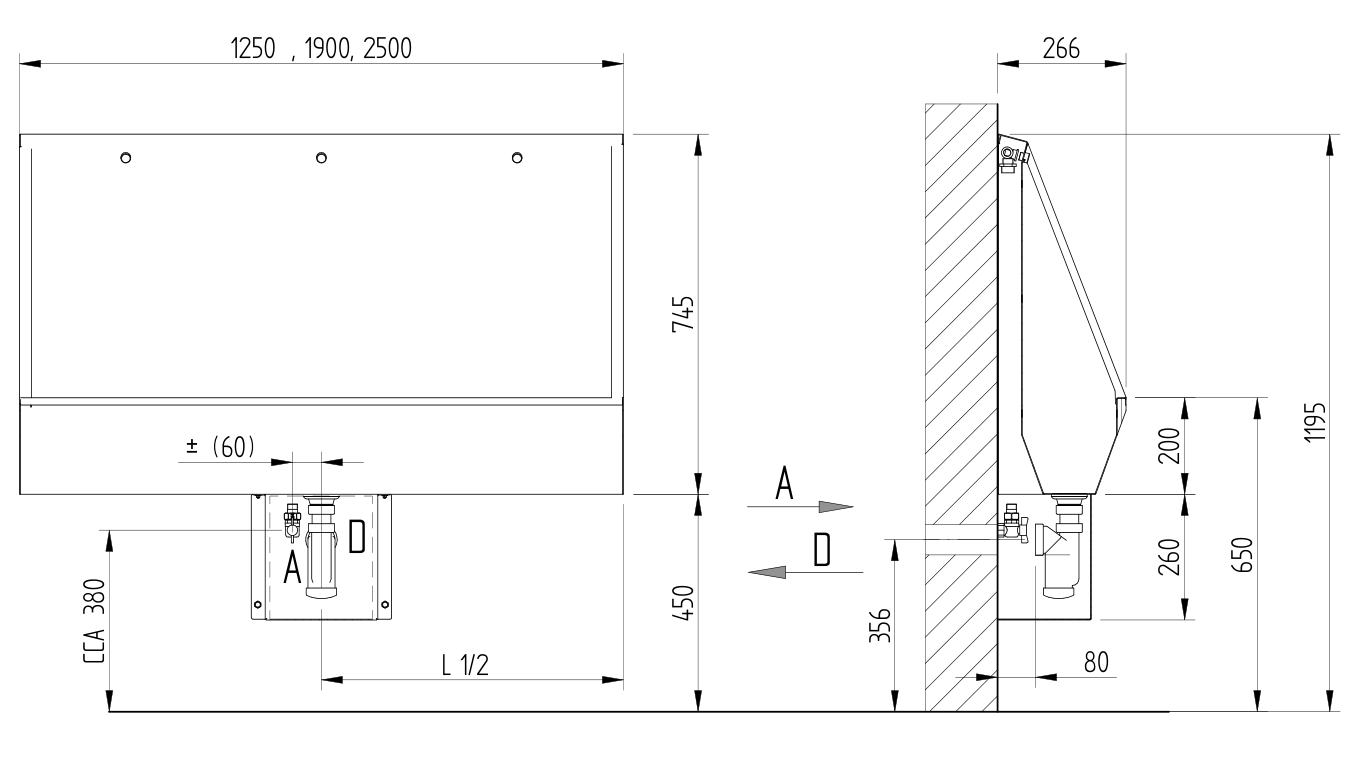
Žľaby sú vyrábané v 3 základných typových šírkach. Na objednávku je možné dodať aj iné šírky podľa potreby, maximálna možná šírka je 2500 mm. Prevedenie žľabu je typovo s odpadom na stred žľabu. Odpadový sifón je chránený krytom.
Žľab je vyrobený z materiálu ČSN 17240 (AISI 304) hrúbky 1,5 mm.
Na ošetrenie výrobkov z nerezu odporúčame používať prípravok Würth – konzervácia ( obj . č. 0893 121 K), čistenie ( obj . č. 893 121 1).
Kompletná dodávka
- nerezový žľab s oplachom a prívodom vody
- sifón
- nerezový kryt sifónu
- drobný montážny materiál
| prívod vody | G 1/2“ vnútorný závit |
| odpad | otvor 50 mm + prelis (pre 6/4“ odpadová vpust) |
| hmotnosť | podľa typu : 29 kg; 38,5 kg; 47,5 kg |
| hrúbka plechu | 1,5 mm |
| materiál | ČSN 17 240, AISI 304 |
- Pripravený prívod vody podľa schémy.
- Pripravený odpad d = 50 mm.

- A – prívod vody
- D - odpad
